
PBOK – Ontelolaattakannake
PBOK-ontelolaattakannake, eli aukonylityspalkki on aukon vieressä kuormia siirtävä ratkaisu, joka toimii ontelolaattojen välisenä kantavana vekselipalkkina.
Miten PBOK-ontelolaattakannake toimii?
PBOK – Ontelolaattakannake siirtää ontelolaatan kuorman viereisille ontelolaatoille tai muille kantaville rakenteille ja toimii aukon vieressä kuormia siirtävänä vekselipalkkina. PBOK -ontelolaattakannake siirtää ja kantaa asennuksen aikaiset ja lopulliset kuormat annetun kapasiteettinsa mukaisesti ja se toimii ontelolaatan päässä kantavana rakenteena.
Materiaalit ja koot
- Rakenneteräksestä S355J2
- Harjateräs kannakkeen sisällä B500B
- Kannakkeessa suojamaali
- Palonkestävyys vakiona R60, saatavilla myös R90 ja R120
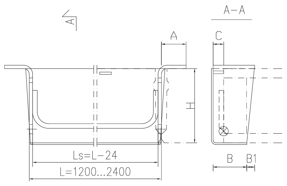
- Korkeus 150–500 mm
- Kannakkeen jänneväli vakiona 1200–2400 mm
- Muut mitat erikoistilauksesta
Aukonylityspalkin valmistustapa
Levyosat leikataan mekaanisesti tai polttoleikataan ja osat hitsataan MIG-menetelmällä käsin hitsauksena. Asennusta helpottavat nostolenkit, joten kannake pysyy suorassa nostettaessa paikalle.
Huomioi tilatessa
Tilaustunnus esimerkiksi PBOK20-1200 (20 on ontelolaatan korkeus ja 1200 aukon leveys).
Suunnittelukomponentit
PBOK ontelolaattakannakkeiden suunnittelukomponentit ovat ladattavissa Teklan Warehousesta.


