
SBKL – Kiinnityslevy
Mitä SBKL-Kiinnityslevyt ovat?
SBKL-kiinnityslevyt ovat betoniin ennen sen kovettumista asennettavia tyssäkantaisilla ankkuroinneilla varustettuja kiinnityslevyjä.
Mihin kiinnityslevyjä käytetään?
SBKL-kiinnityslevyt on tarkoitettu hitsausalustaksi teräsprofiileille.
Miten ne toimivat?
Kiinnityslevyt siirtävät kuormat siihen hitsatulta teräsrakenteelta tartuntojen välityksellä betonirakenteelle.
Missä niitä käytetään?
Niitä käytetään muun muassa teräsrakenteissa, betonielementeissä ja koneperustuksissa, joissa levyosaan kiinnitetään hitsaamalla muita rakenteita.
SBKL-kiinnityslevyjä valmistetaan:
- Rakenneteräksestä S355J2 (SBKL)
- Ruostumattomasta teräksestä 1.4301 (SBKLR)
- Haponkestävästä teräksestä 1.4401 (SBKLH)
- Ruostumattomasta teräksestä ruostumattomilla ankkuroinneilla (SBKLRr)
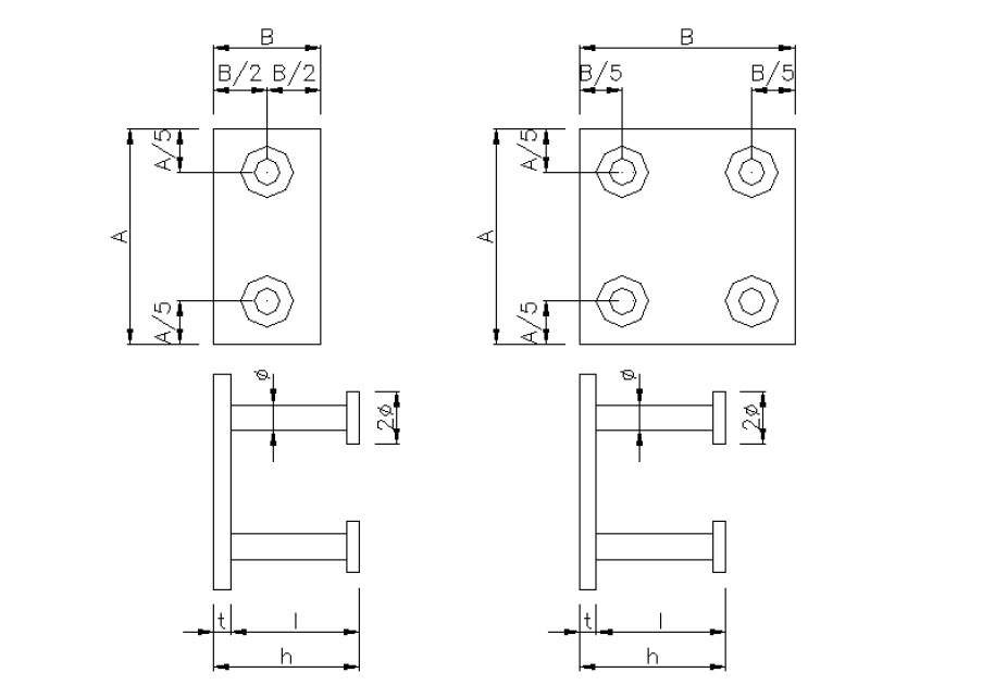
Valmistettavat koot ovat välillä 50 x 100–300 x 300 mm. Levyn vahvuus on koosta riippuen 8–15 mm. Rakenneteräksiset levyosat ovat suojamaalattuja. Ruostumattomat levyosat ovat laadussa 1.4301 ja haponkestävät levyosat laadussa 1.4401. Tartuntalevyjen tyssäankkurit on valmistettu pyöröteräksestä laadussa S355J2.
Miten valmistetaan?
Kiinnityslevyt valmistetaan MAG-hitsausmenetelmällä EN1090 sertifioidussa hitsaavassa konepajassa, joten jäljitettävyys ja laatu ovat kunnossa. Tuotteet ovat valmistettu robottihitsaamalla tai käsihitsaamalla. Tuotteet ovat jäljitettävissä levyjen pintaan tulevien merkintöjen avulla. Merkinnät sisältävät tuotteen nimen, mitat, valmistuserän ja FI-merkin.
Asennusohje ja käyttöseloste
Voit ladata asennusohjeen verkkosivuiltamme suoraan esimerkiksi omaan projektikansioosi tämän sivun yläosasta. Näin myös työmaan lopputarkastuksesta tulee helppoa Semkon tuotteiden osalta!
Suunnittelukomponentit
Suunnittelukomponentit ovat ladattavissa Teklan Warehousesta.


