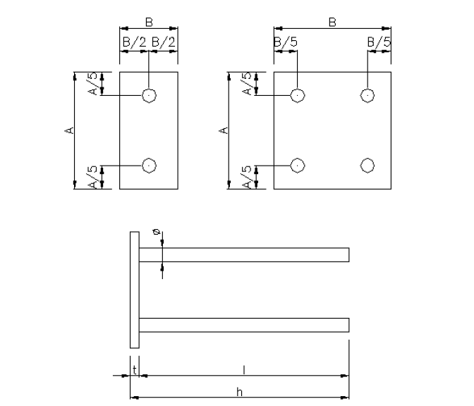
KL – Standard Fastening Plate
KL – Standard fastening plates are standard steel components embedded in concrete before it sets to transmit the loads acting on them to the concrete structures via the tie bars fixed to the steel components. Standard fastening plates are available in black (S355J0, e.g. KL), stainless steel (AISI 304, e.g. KLH), acid-proof steel (AISI 316, e.g. KLH), and stainless steel with stainless anchor bolts (e.g. KLRr).
Special order
Galvanized products are also available on order.

